Сертификаты

ProGres Сeramica(Кировская керамика)

Сертификаты соответствия

Протокол испытаний R11


Сертификаты

Керамогранит

Сертификаты 

               Сертификат Сертификат Сертификат Сертификат Сертификат Сертификат Сертификат Сертификат Сертификат Сертификат Определение сопротивления скольжению поверхности керамогранита

Сертификаты пожарной безопасности

     Сертификат Сертификат Сертификат Сертификат

Сертификаты соответствия



Сертификаты соответствия

Progres (PrimeCeramics)

Сертификаты соответствия 


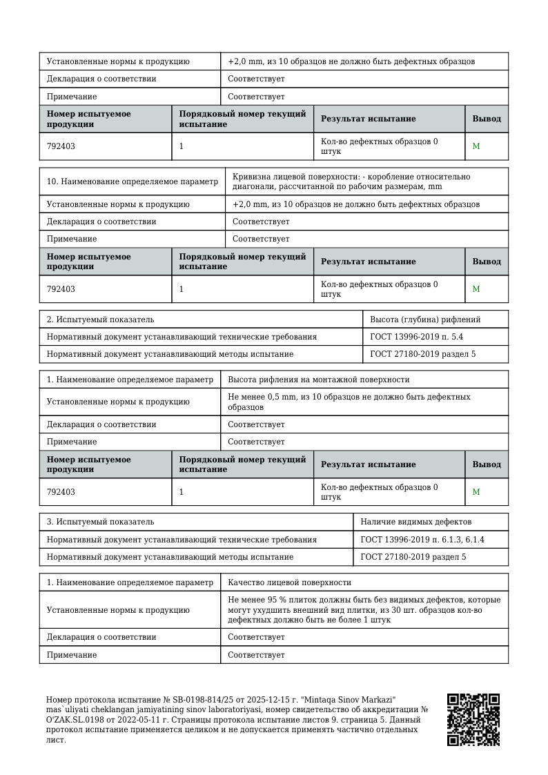
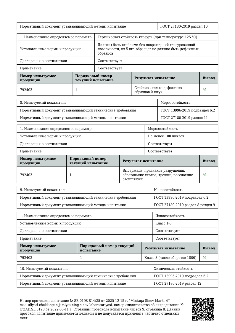
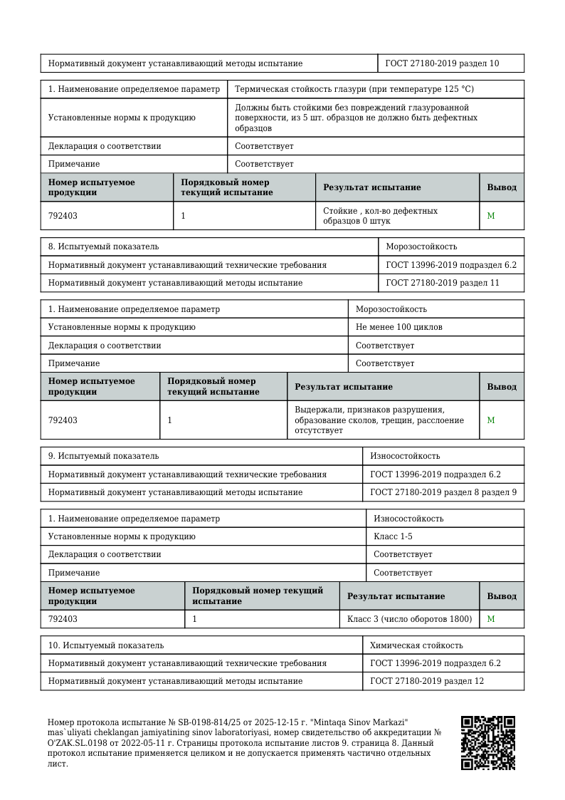
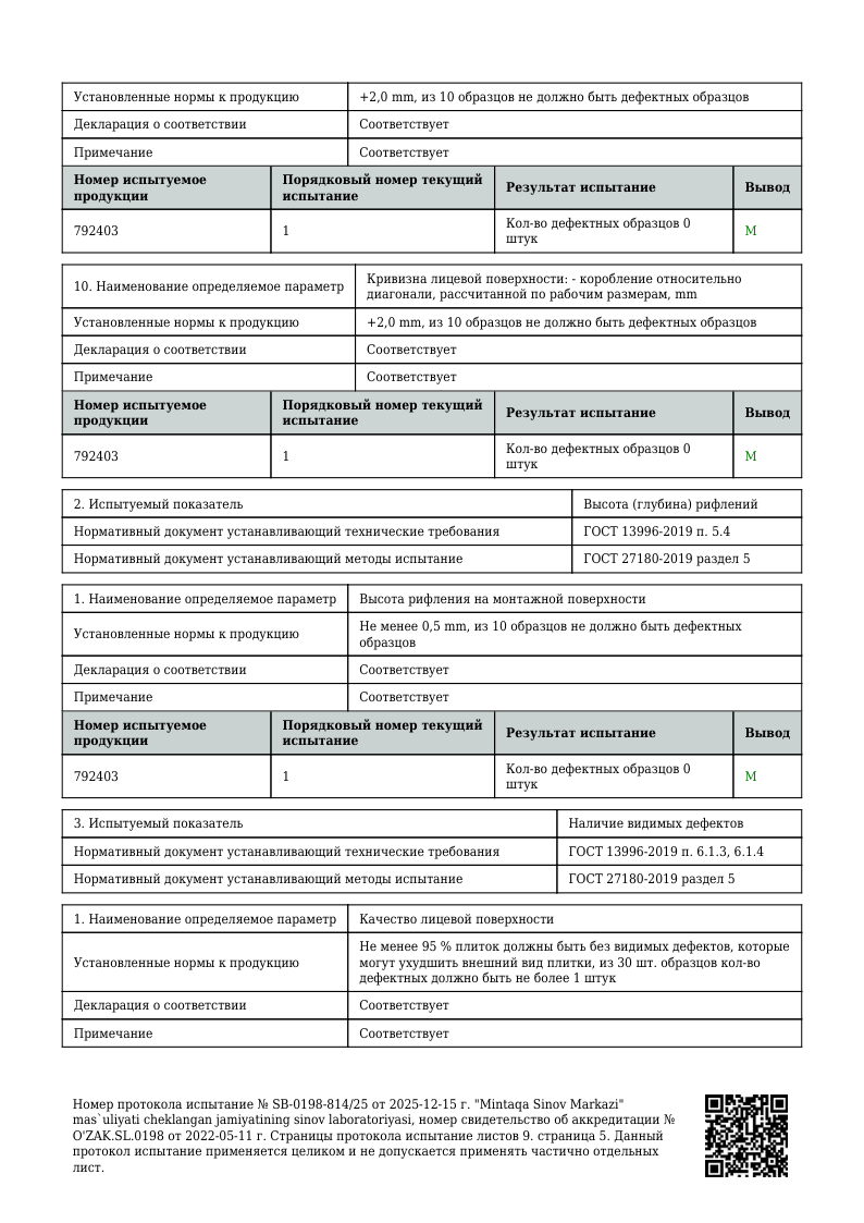
Протоколы испытаний

ПРОТОКОЛ ИСПЫТАНИЙ 1200х600 мм



        протоколы
Радиология
Скольжение 2023
Скольжение на мокрых поверхностях 2024
Скольжение 2024
Испытания 60х60
Морозостойкость